洛西センタービル

20.68万円 (0.73万円/坪) 管理/共益費 175,780円~295,460円

京都府京都市西京区大原野東境谷町2丁目

阪急京都本線「洛西口」駅バス10分京都市営バス「洛西バスターミナル」停歩1分

価格
20.68万円(0.73万円/坪) 管理/共益費 175,780円~295,460円
面積
28.43坪~47.79坪(94.00㎡~158.00㎡)
所在地
京都府京都市西京区大原野東境谷町2丁目
築年
1982年4月(築43年)
駐車
-
交通

阪急京都本線洛西口」駅 バス10分 京都市営バス「洛西バスターミナル」 停歩1分

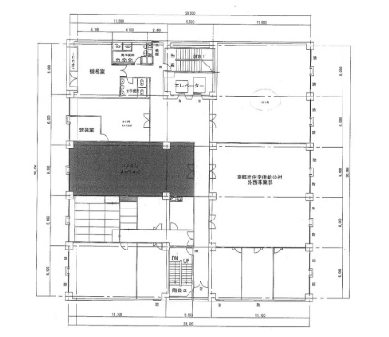
洛西センタービルの基本情報

物件名
洛西センタービル
価格
20.68万円(0.73万円/坪)
管理/共益費
175,780円~295,460円
築年月
1982年4月(築43年)
所在地
京都府京都市西京区大原野東境谷町2丁目
交通

阪急京都本線洛西口」駅 バス10分 京都市営バス「洛西バスターミナル」 停歩1分

洛西センタービルの詳細情報

設備条件
  • 好立地
  • ロードサイド
  • エレベーター
  • 駐車2台可
  • 駐車3台可
駐車場/月額
-/-
取引態様
仲介

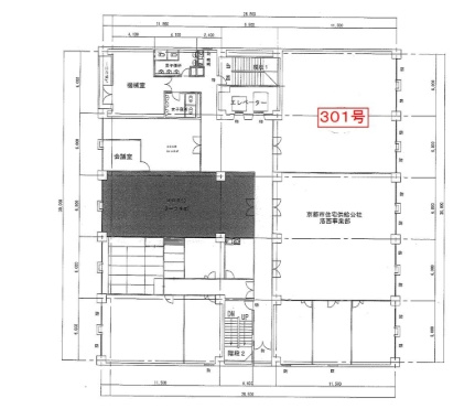
洛西センタービルで募集中の物件

  1. 306

    28.43坪 (94.00㎡)

    20.68万円(0.73万円/坪)

  2. 3階

    41.44坪 (137.00㎡)

    30.14万円(0.73万円/坪)

  3. 5階

    47.79坪 (158.00㎡)

    34.76万円(0.73万円/坪)

洛西センタービル

お気軽にお問い合わせください

無料お問い合わせ

株式会社ムカイ・エンタープライズ

075-585-6675

9:00~19:00

(休:年末年始/お盆期間)