平田ビル 1階

22万円(0.8万円/坪)

管理 / 共益費 11,000円

京都府京都市左京区浄土寺真如町

京都地下鉄東西線「蹴上」駅徒歩20分

京都地下鉄東西線「東山」駅徒歩26分

京阪鴨東線「神宮丸太町」駅徒歩26分

賃料 / 坪単価
22万円 / 0.8万円
敷金(保証金)
0ヶ月(100万円)
所在地
京都府京都市左京区浄土寺真如町
交通

京都地下鉄東西線蹴上」駅 徒歩20分

京都地下鉄東西線東山」駅 徒歩26分

京阪鴨東線神宮丸太町」駅 徒歩26分

管理 / 共益費
11,000円
礼金
0ヶ月
建物面積
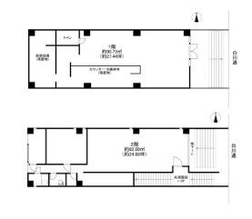
27.44坪(90.73㎡)
築年月
1989年10月(築36年)

セールスポイント

北白川通りに面した飲食店の居抜き物件になります。冷蔵庫や厨房設備が残置物として残っています。たくさんのお問い合わせお待ちしております。

基本情報

保証金
100万円
敷引 / 償却
- / -
建物面積
90.73㎡
所在階 / 階建て
1階 / 4階建
建物構造
鉄筋コンクリート
築年月
1989年10月(築36年)
種別
店舗一部
契約期間
定期借家 5年
保証会社 / 料金
- / -
現況
空家
入居可能時期
即時
取引条件の
有効期限
2025年11月14日

設備条件

設備条件
  • 飲食店可 / 居抜物件 / ダクトあり / 残置物有 / 厨房設備あり / シンクあり

その他

賃貸区分
定期借家権
保険会社 / 料金
有  / -
取引態様
仲介
物件番号
89993245
情報更新日
2025年10月31日
次回更新予定日
2025年11月14日

平田ビルの他の物件

  1. 1階-2階

    - (170.73㎡)

    33万円(0.64万円/坪)

  2. 2階

    - (82.00㎡)

    22万円(0.89万円/坪)

周辺施設

  • 京都市動物園の画像

    動物園

    京都市動物園

    1090m(14分)

  • 平安神宮の画像

    寺院・神社

    平安神宮

    1367m(18分)

  • 岡崎公園の画像

    公園

    岡崎公園

    1383m(18分)

近隣の物件

  1. COCO下鴨

    京都市左京区下鴨西林町

    - (103.94㎡)

    33万円(1.05万円/坪)

  2. エクセレント修学院

    京都市左京区山端川原町

    - (256.62㎡)

    110万円(1.42万円/坪)

  3. 北白川大堂町 貸店舗

    京都市左京区北白川大堂町

    - (154.11㎡)

    38.5万円(0.83万円/坪)

  4. 酒井産業ビル

    京都市左京区山端川原町

    - (66.50㎡)

    41.58万円(2.07万円/坪)

平田ビル

平田ビル

22万円

11,000円

27.44坪(90.73㎡)

お気軽にお問い合わせください

無料お問い合わせ

株式会社ムカイ・エンタープライズ

075-585-6675

9:00~19:00

(休:年末年始/お盆期間)