おすすめの駅
4件
-
14.3万円 (0.62万円/坪) 管理/共益費-
1階 / 22.90坪 (75.72㎡) /築40年 /6階建
- 電気有
- 都市ガス
- 駐輪場
- エレベーター
- 陽当り良好
- 耐震構造
★前店舗(居酒屋)★
テナント専用駐車スペース有★スケルトン引き渡しです(*^_^*) -
敷礼0
即入居可
12.28万円 (0.56万円/坪) 管理/共益費33,495円
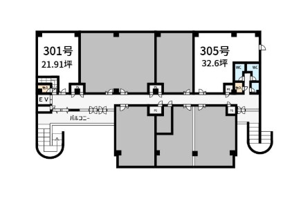
2階 / 21.91坪 (72.42㎡) /築38年 /3階建
- バス・トイレ別
- エアコン
- フローリング
- 電気有
- 都市ガス
- 温水洗浄便座
条件相談大歓迎!!今だけ敷金・礼金0円キャンペーン実施中!!
業種相談等ございましたら気軽にご相談くださいませ(*^_^*)
住宅地の中に位置するテナントビル☆
医療関係やスーパー、進学塾など複数のテナントが入居しています♪
地域密着型のサービス展開をお考えのお客様や、落ち着いたオフィス環境をお探しのお客様にもオススメです◎ -
敷礼0
即入居可
19.72万円 (0.6万円/坪) 管理/共益費53,790円
3階 / 32.60坪 (107.80㎡) /築38年 /3階建
- バス・トイレ別
- エアコン
- フローリング
- 電気有
- 都市ガス
- 駐輪場
条件相談大歓迎!!今だけ敷金・礼金0円キャンペーン実施中!!☆
業種相談等ございましたら気軽にご相談ください(*^_^*)
名神高速道路吹田ICまで車で10分ほど!
間口4.7mのシャッター入口あります☆
1tホイストクレーン1基残置物であります。
倉庫前面に駐車スペースもあります!
その他ご業種もお気軽にお問い合わせください☆