26件
-
敷礼0
154万円 (3.7万円/坪) 管理/共益費-
1階 / 41.58坪 (137.48㎡) /築46年 /34階建
- エアコン
- フローリング
- 電気有
- 都市ガス
- エレベーター
- 陽当り良好
敷金礼金ゼロ☆☆北新地駅にも徒歩2分と近くてアクセス抜群なテナントです♪
希少なメゾネットタイプ!34階建てで、街並みに溶け込んだ落ち着いた建物です。
評判の高い路面店なので良く目に留まりやすく、視認性良好です◎
事務所・店舗におススメですが、飲食不可とさせていただきます(*^_^*) -
礼0
86.4万円 (2.64万円/坪) 管理/共益費216,018円
8階 / 32.73坪 (108.20㎡) /築47年 /9階建
- 電気有
- 都市ガス
- 好立地
- 視認性良好
- 美容室向け
- 居抜物件
大阪市北区の美容院居抜き物件です(*^^*)
その他各種ご業種ご相談ください★
たくさんのお問い合わせお待ちしております♪ -
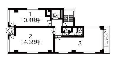
敷0
124.24万円 (8.64万円/坪) 管理/共益費31,636円
- / 14.38坪 (47.55㎡) /予定 /10階建
- エアコン
- 都市ガス
- エレベーター
- トイレ共同
- 公共下水
大江橋駅から徒歩4分♪お気軽にお問合せください★
※築年月はお問合せください。 -
139.48万円 (2.2万円/坪) 管理/共益費392,129円
地下1階 / 63.31坪 (209.31㎡) /築55年 /12階建
- エレベーター
- 飲食店可
- 重飲食可
重飲食相談可能!
自社サイトのみの取り扱い物件多数ございます★ぜひご覧ください(*^^*) -
35.2万円 (5.32万円/坪) 管理/共益費28,259円
地下2階 / 6.62坪 (21.89㎡) /築49年 /16階建
- 電気有
- 都市ガス
- 好立地
- トイレ共同
- 飲食店可
- 物販向け
大阪メトロ四ツ橋線「西梅田」徒歩2分 人気のビル地下物件 飲食店可 カフェ・物販など (※可能業種や設備等の詳細はお問い合わせください。)
-
礼0
197万円 (1.99万円/坪) 管理/共益費385,580円
15階 / 98.93坪 (327.05㎡) /築44年 /25階建
- 電気有
- エレベーター
- 好立地
- 事務所可
- トイレ共同
- 公共下水
大阪メトロ谷町線「東梅田」徒歩2分 倉庫付き事務所 (※可能業種や設備等の詳細はお問い合わせください。)
-
礼0
即入居可
35.06万円 (1.73万円/坪) 管理/共益費76,114円
3階 / 20.32坪 (67.18㎡) /築36年 /7階建
- エアコン
- フローリング
- 電気有
- 都市ガス
- エレベーター
- 陽当り良好
ぜひ一度見ていただきたい「西梅田上島ビル」です。
賃料は35.06万円です。リアルタイムで監視が行われる機械警備が導入されています☆
周辺には徒歩5分で利用できる駅があります。
冷房が付いているので初日から快適に過ごせます。
好立地で不便に感じる事はありません◎ -
礼0
106.48万円 (3.19万円/坪) 管理/共益費-
16階 / 33.37坪 (110.32㎡) /築30年 /17階建
- エアコン
- フローリング
- 電気有
- 都市ガス
- エレベーター
- 陽当り良好
建物の敷地内に空いている駐車場があるのでご利用いただけます(*^_^*)
17階建てで、街並みに溶け込んだ落ち着いた建物。
周辺には徒歩5分で利用できる駅があります◎
賃料は106.48万円です。外から見ても認識しやすく、視認性良好です。 -
礼0
即入居可
200.75万円 (2.53万円/坪) 管理/共益費-
11階 / 79.34坪 (262.31㎡) /築23年 /13階建
- 電気有
- 都市ガス
- 温水洗浄便座
- エレベーター
- 陽当り良好
- 照明器具付き
賃料は200.75万円です◎
是非ご覧ください13階建ての高層建築!メリットの豊富さから需要の高い好立地(^^) -
礼0
73.01万円 (2.02万円/坪) 管理/共益費170,527円
1階 / 36.07坪 (119.25㎡) /築36年 /7階建
- エアコン
- 電気有
- 都市ガス
- エレベーター
- 陽当り良好
- 眺望良好
東西線北新地駅にも近くて便利!
徒歩4分の位置に駅がある物件です。
エアコン付きなので暑い日も寒い日も安心して過ごせます☆
こちらは機械警備付きの物件で月73.01万円グレードの高い物件となっております。 -
礼0
426.93万円 (3.31万円/坪) 管理/共益費-
8階 / 129.14坪 (426.93㎡) /築10年 /21階建
- フローリング
- 電気有
- 都市ガス
- エレベーター
- 陽当り良好
- 眺望良好
地上21階建てで景色も良く、多数のお問い合わせをいただいております(*^_^*)
賃料は426.93万円です。周辺環境の充実した好立地です◎ -
即入居可
254.92万円 (2.2万円/坪) 管理/共益費710,458円
地下1階 / 115.87坪 (383.07㎡) /築55年 /12階建
飲食店営業可・2面間口(北側・南側)・大型商業複合ビル
-
礼0
即入居可
35.06万円 (1.73万円/坪) 管理/共益費76,114円
2階 / 20.32坪 (67.18㎡) /築36年 /7階建
- エアコン
- フローリング
- 電気有
- 都市ガス
- 温水洗浄便座
- エレベーター
設備・環境ともに良い35.06万円の物件です☆
エレベーターがあり、徒歩5分の位置に駅がある物件です。
コンピュータで監視される機械警備が行われています◎
室内設備はエアコン・冷房など充実した設備を備え付けています。
周辺環境の充実した好立地。 -
礼0
37.5万円 (2.68万円/坪) 管理/共益費-
2階 / 13.99坪 (46.28㎡) /築46年 /2階建
- 室内洗濯機置場
- 電気有
- 都市ガス
- 陽当り良好
- 眺望良好
- 好立地
北新地駅から徒歩6分◎
好立地にございます(^^♪
各種ご業種ご相談ください★
たくさんのお問い合わせお待ちしております♪ -
新築
85.18万円 (2万円/坪) 管理/共益費-
8階 / 42.59坪 (140.81㎡) /予定 /10階建
- バス・トイレ別
- エアコン
- フローリング
- 駐輪場
- 温水洗浄便座
- 独立洗面台
北新地駅から徒歩5分^^約42坪超え♪
2025年築☆8階部分のワンフロア仕様★
エアコン・共用トイレ・給湯室など充実◎
ポータルサイトには載せきれていない隠れ物件、HPに載せてるのでお見逃しなく(*'ω'*)! -
即入居可
301.4万円 (1.24万円/坪) 管理/共益費1,526,646円
地下1階 / 242.54坪 (801.81㎡) /築55年 /12階建
- エアコン
- フローリング
- 電気有
- 都市ガス
- エレベーター
- 陽当り良好
東西線北新地駅にも近くて便利。
12階建てで、街並みに溶け込んだ落ち着いた建物です!
高層ビルのため、造りがSRC構造としっかりしています☆
周辺には、徒歩3分で利用できる駅があります。ニーズの高い好立地。 -
新築
85.18万円 (2万円/坪) 管理/共益費-
10階 / 42.59坪 (140.81㎡) /予定 /10階建
- バス・トイレ別
- エアコン
- フローリング
- 駐輪場
- 温水洗浄便座
- 独立洗面台
北新地駅から徒歩5分^^約42坪超え♪
2025年築☆最上階です♪
エアコン・共用トイレ・給湯など充実◎
ポータルサイトには載せきれていない隠れ物件、HPに載せてるのでお見逃しなく(*'ω'*)! -
敷礼0
即入居可
73.34万円 (4.4万円/坪) 管理/共益費-
1階 / 16.67坪 (55.12㎡) /築46年 /34階建
- フローリング
- 電気有
- 都市ガス
- エレベーター
- 陽当り良好
- 好立地
大阪駅前第3ビルの空室情報ならコチラ!
周辺には、徒歩4分で利用できる駅があります。
夏の暑さや冬の寒さにも耐えられるように、エアコンが2台設置してあります。
通りに面しているので、宣伝効果や高い集客効果が期待できます☆
視認性が良好です。好立地で、周辺環境も便利です。 -
敷0
即入居可
71.5万円 (2.31万円/坪) 管理/共益費55,000円
7階 / 31.00坪 (102.48㎡) /築32年 /9階建
- 都市ガス
- 好立地
- 飲食店可
- シンクあり
- 視認性良好
- スナック・バー向け
北新地駅から徒歩3分の好立地にございます(^^♪
飲食店可能物件です★
たくさんのお問い合わせお待ちしております♪ -
敷0
107.8万円 (1.54万円/坪) 管理/共益費264,000円
4階 / 69.99坪 (231.40㎡) /築50年 /10階建
梅田北新地入口、御堂筋に面するレジャービル!自社サイトのみの取り扱い物件多数ございます★ぜひご覧ください(*^^*)
-
礼0
280万円 (1.91万円/坪) 管理/共益費-
- / 146.49坪 (484.29㎡) /築21年 /4階建
1階天井高約4m 自社サイトのみの取り扱い物件多数ございます★ぜひご覧ください(*^^*)
-
36.70万円 (1.65万円/坪) 管理/共益費88,983円
4階 / 22.24坪 (73.54㎡) /築46年 /34階建
北側区画、個別空調有り!自社サイトのみの取り扱い物件多数ございます★ぜひご覧ください(*^^*)
-
敷0
37.4万円 (2.2万円/坪) 管理/共益費65,450円
6階 / 16.99坪 (56.19㎡) /築63年 /6階建
- エアコン
- フローリング
- 電気有
- 都市ガス
- エレベーター
- 陽当り良好
北新地本通りに面する飲食・美容複合ビルです♪
こだわりのお店をつくりたい方は一度ご覧ください(*^_^*)飲食店可の建物です♪
北新地駅から徒歩2分です☆☆ニーズの高い好立地♪
自分のお店として飲食店を開きたい方に適した建物です◎
認性良好で、さまざまな人にも目に留まりやすいです(#^^#)
◎店舗利用相談可能です♪
◎事務所仕様での引渡し
◎給排水可・音、臭気等を伴う業種不可
◎大通りに面しショールームに最適
◎定期借家5年
◎21.91坪