浄土寺ビル

29.7万円 (1.1万円/坪)

管理/共益費 -

京都府京都市左京区浄土寺上馬場町

叡山電鉄叡山本線「元田中」駅徒歩27分

価格
29.7万円(1.1万円/坪) 管理/共益費 -
面積
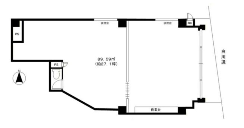
27.10坪(89.59㎡)
所在地
京都府京都市左京区浄土寺上馬場町
築年
1991年3月(築35年)
駐車
-
交通

叡山電鉄叡山本線元田中」駅 徒歩27分

浄土寺ビルの基本情報

物件名
浄土寺ビル
価格
29.7万円(1.1万円/坪)
管理/共益費
-
築年月
1991年3月(築35年)
所在地
京都府京都市左京区浄土寺上馬場町
交通

叡山電鉄叡山本線元田中」駅 徒歩27分

浄土寺ビルの詳細情報

設備条件
  • 路面店
駐車場/月額
-/-
取引態様
仲介

浄土寺ビルで募集中の物件

  1. 1階

    27.10坪 (89.59㎡)

    29.7万円(1.1万円/坪)

近隣の物件

  1. 京都市左京区下鴨西林町

    - (103.94㎡)

    33万円(1.05万円/坪)

  2. 京都市左京区岡崎円勝寺町

    223.97坪 (740.41㎡)

    198万円(0.88万円/坪)

  3. 京都市左京区山端川原町

    - (256.62㎡)

    110万円(1.42万円/坪)

  4. 京都市左京区北白川大堂町

    - (154.11㎡)

    38.5万円(0.83万円/坪)

よく見られている物件

  1. 京都市東山区下河原町

    - (25.34㎡)

    19.8万円

  2. 京都市東山区清水4丁目

    - (75.85㎡)

    49.5万円

  3. 芦屋市業平町

    - (573.98㎡)

    66万円

  4. 箕面市船場西1丁目

    - (49.91㎡)

    15.95万円

浄土寺ビル

お気軽にお問い合わせください

無料お問い合わせ

株式会社ムカイ・エンタープライズ

075-585-6675

9:00~19:00

(休:年末年始/お盆期間)