HeaRth One BLDG

20.87万円 (0.77万円/坪) 管理/共益費 59,642円~105,556円

大阪府豊中市庄内東町2丁目

阪急宝塚本線「庄内」駅徒歩2分

阪急宝塚本線「三国」駅徒歩23分

阪急宝塚本線「服部天神」駅徒歩23分

価格
20.87万円(0.77万円/坪) 管理/共益費 59,642円~105,556円
面積
27.11坪~47.99坪(89.64㎡~158.65㎡)
所在地
大阪府豊中市庄内東町2丁目
築年
2024年5月(築1年)
駐車
空無
交通

阪急宝塚本線庄内」駅 徒歩2分

阪急宝塚本線三国」駅 徒歩23分

阪急宝塚本線服部天神」駅 徒歩23分

HeaRth One BLDGの基本情報

物件名
HeaRth One BLDG
価格
20.87万円(0.77万円/坪)
管理/共益費
59,642円~105,556円
築年月
2024年5月(築1年)
所在地
大阪府豊中市庄内東町2丁目
交通

阪急宝塚本線庄内」駅 徒歩2分

阪急宝塚本線三国」駅 徒歩23分

阪急宝塚本線服部天神」駅 徒歩23分

HeaRth One BLDGの詳細情報

設備条件
  • エレベーター
駐車場/月額
空無/-
取引態様
仲介

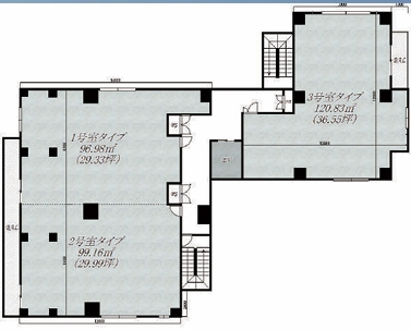
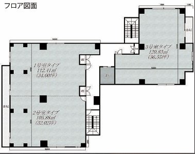
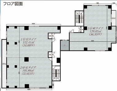
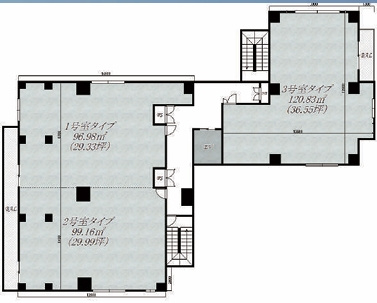
HeaRth One BLDGで募集中の物件

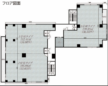
  1. 303

    36.55坪 (120.83㎡)

    28.14万円(0.77万円/坪)

  2. 402

    27.11坪 (89.64㎡)

    20.87万円(0.77万円/坪)

  3. 401・402

    47.99坪 (158.65㎡)

    36.83万円(0.77万円/坪)

近隣の物件

  1. 豊中市寺内2丁目

    - (86.75㎡)

    52万円(1.98万円/坪)

  2. 豊中市岡町北1丁目

    - (78.55㎡)

    33万円(1.39万円/坪)

  3. 豊中市末広町2丁目

    - (71.12㎡)

    30.74万円(1.43万円/坪)

  4. 豊中市三和町2丁目

    - (119.38㎡)

    33万円(0.91万円/坪)

よく見られている物件

  1. 京都市東山区下河原町

    - (25.34㎡)

    19.8万円

  2. 京都市東山区清水4丁目

    - (75.85㎡)

    49.5万円

  3. 芦屋市業平町

    - (573.98㎡)

    66万円

  4. 箕面市船場西1丁目

    - (49.91㎡)

    15.95万円

HeaRth One BLDG

お気軽にお問い合わせください

無料お問い合わせ

株式会社ムカイ・エンタープライズ

075-585-6675

9:00~19:00

(休:年末年始/お盆期間)