五島貸店舗

27.5万円 (0.4万円/坪) 管理/共益費 -

京都府船井郡京丹波町蒲生蒲生野

山陰本線「下山」駅徒歩76分

山陰本線「胡麻」駅徒歩79分

価格
27.5万円(0.4万円/坪) 管理/共益費 -
面積
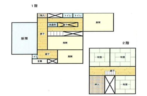
68.36坪(226.01㎡)
所在地
京都府船井郡京丹波町蒲生蒲生野
築年
1983年6月(築42年)
駐車
-
交通

山陰本線下山」駅 徒歩76分

山陰本線胡麻」駅 徒歩79分

五島貸店舗の基本情報

物件名
五島貸店舗
価格
27.5万円(0.4万円/坪)
管理/共益費
-
築年月
1983年6月(築42年)
所在地
京都府船井郡京丹波町蒲生蒲生野
交通

山陰本線下山」駅 徒歩76分

山陰本線胡麻」駅 徒歩79分

五島貸店舗の詳細情報

設備条件
  • ロードサイド
  • 路面店
駐車場/月額
-/-
取引態様
仲介

五島貸店舗で募集中の物件

  1. 68.36坪 (226.01㎡)

    27.5万円(0.4万円/坪)

近隣の物件

  1. 船井郡京丹波町須知色紙田

    - (293.00㎡)

    37.5万円(0.42万円/坪)

五島貸店舗

お気軽にお問い合わせください

無料お問い合わせ

株式会社ムカイ・エンタープライズ

075-585-6675

9:00~19:00

(休:年末年始/お盆期間)