中尾ロイヤルビル

要相談 (要相談/坪)

管理/共益費 -

大阪府大阪市淀川区宮原2丁目

地下鉄御堂筋線「東三国」駅徒歩3分

価格
要相談(要相談/坪) 管理/共益費 -
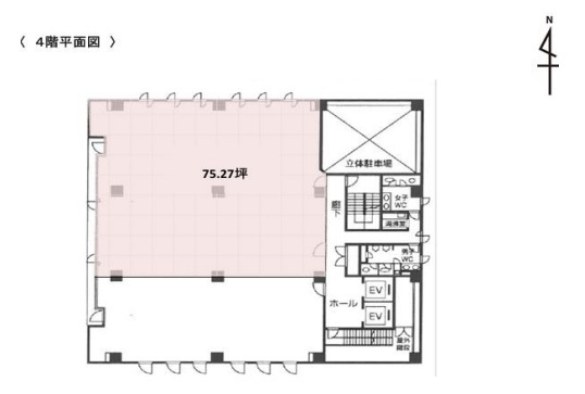
面積
75.26坪(248.82㎡)
所在地
大阪府大阪市淀川区宮原2丁目
築年
1986年3月(築40年)
駐車
-
交通

地下鉄御堂筋線東三国」駅 徒歩3分

中尾ロイヤルビルの基本情報

物件名
中尾ロイヤルビル
価格
要相談(要相談/坪)
管理/共益費
-
築年月
1986年3月(築40年)
所在地
大阪府大阪市淀川区宮原2丁目
交通

地下鉄御堂筋線東三国」駅 徒歩3分

中尾ロイヤルビルの詳細情報

設備条件
駐車場/月額
-/-
取引態様
仲介

中尾ロイヤルビルで募集中の物件

  1. 4階

    75.26坪 (248.82㎡)

    要相談(要相談/坪)

近隣の物件

  1. 大阪市淀川区西中島3丁目

    51.48坪 (170.20㎡)

    56.65万円(1.1万円/坪)

  2. 大阪市淀川区西中島7丁目

    0坪 (102.31㎡)

    33.36万円(1.08万円/坪)

  3. 大阪市淀川区宮原2丁目

    - (45.00㎡)

    15.2万円(1.12万円/坪)

  4. 大阪市淀川区宮原3丁目

    - (201.33㎡)

    158.34万円(2.6万円/坪)

よく見られている物件

  1. 京都市東山区祇園町南側

    - (84.29㎡)

    17.6万円

  2. 京都市右京区西京極畔勝町

    - (46.96㎡)

    11.5万円

  3. 京都市中京区丸屋町

    - (81.43㎡)

    27.5万円

  4. 京都市下京区烏丸通五条上る五条烏丸町

    - (75.20㎡)

    32.53万円

中尾ロイヤルビル

お気軽にお問い合わせください

無料お問い合わせ

株式会社ムカイ・エンタープライズ

075-585-6675

9:00~19:00

(休:年末年始/お盆期間)