今出川大宮テナントビル

45万円 (0.83万円/坪) 管理/共益費 -

京都府京都市上京区元伊佐町

京都市営烏丸線「今出川」駅徒歩15分

京都市営烏丸線「鞍馬口」駅徒歩23分

京福電気鉄道北野線「北野白梅町」駅徒歩22分

価格
45万円(0.83万円/坪) 管理/共益費 -
面積
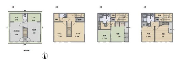
54.44坪(180.00㎡)
所在地
京都府京都市上京区元伊佐町
築年
1998年11月(築27年)
駐車
-
交通

京都市営烏丸線今出川」駅 徒歩15分

京都市営烏丸線鞍馬口」駅 徒歩23分

京福電気鉄道北野線北野白梅町」駅 徒歩22分

今出川大宮テナントビルの基本情報

物件名
今出川大宮テナントビル
価格
45万円(0.83万円/坪)
管理/共益費
-
築年月
1998年11月(築27年)
所在地
京都府京都市上京区元伊佐町
交通

京都市営烏丸線今出川」駅 徒歩15分

京都市営烏丸線鞍馬口」駅 徒歩23分

京福電気鉄道北野線北野白梅町」駅 徒歩22分

今出川大宮テナントビルの詳細情報

設備条件
駐車場/月額
-/-
取引態様
仲介

今出川大宮テナントビルで募集中の物件

  1. 54.44坪 (180.00㎡)

    45万円(0.83万円/坪)

周辺施設

  • 大本山妙蓮寺の画像

    文化財

    大本山妙蓮寺

    689m(9分)

  • 京都市立正親小学校の画像

    小学校

    京都市立正親小学校

    835m(11分)

  • 浄福寺の画像

    その他

    浄福寺

    843m(11分)

  • ローソン千本一条店の画像

    コンビニエンスストア

    ローソン千本一条店

    994m(13分)

  • デイリーカナートイズミヤ千本中立売店の画像

    スーパー

    デイリーカナートイズミヤ千本中立売店

    1054m(14分)

  • セブンイレブン京都千本中立売店の画像

    コンビニエンスストア

    セブンイレブン京都千本中立売店

    1067m(14分)

  • 建勲神社の画像

    文化財

    建勲神社

    1462m(19分)

近隣の物件

  1. 京都市上京区花立町

    88.2坪 (291.60㎡)

    80万円(0.91万円/坪)

  2. 京都市上京区東上善寺町

    - (108.17㎡)

    35.99万円(1.1万円/坪)

  3. 京都市上京区三番町

    61.35坪 (202.84㎡)

    24.5万円(0.4万円/坪)

  4. 京都市上京区北小路室町

    18.86坪 (62.37㎡)

    38.5万円(2.04万円/坪)

今出川大宮テナントビル

お気軽にお問い合わせください

無料お問い合わせ

株式会社ムカイ・エンタープライズ

075-585-6675

9:00~19:00

(休:年末年始/お盆期間)